
MIL-PRF-1/1647E
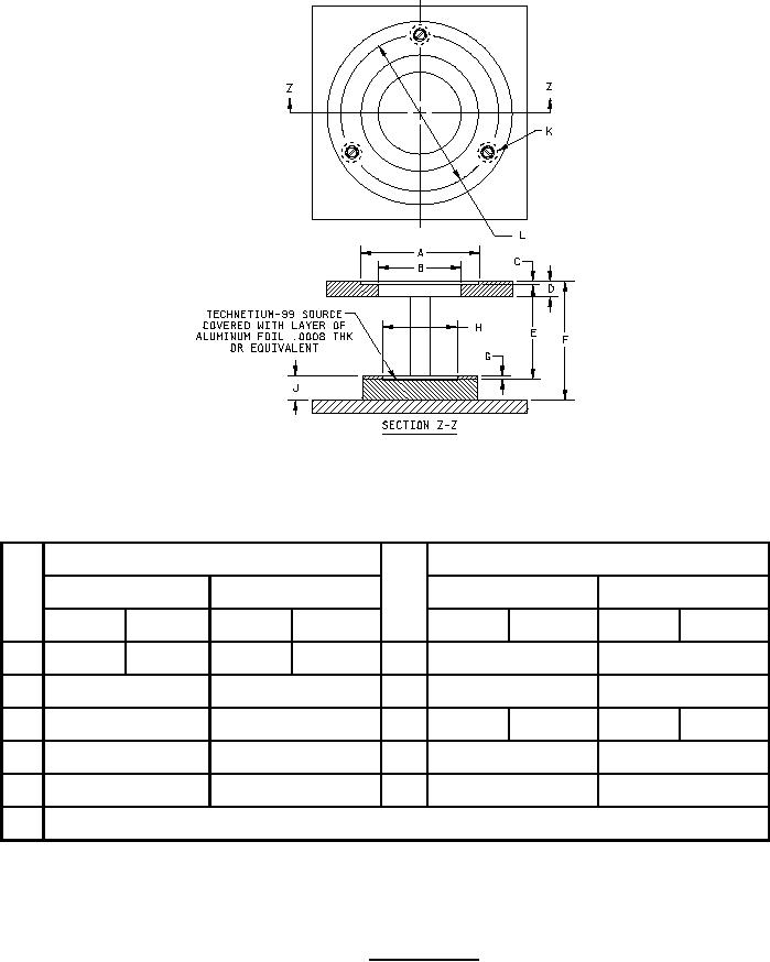
Dimensions
Dimensions
Ltr
Millimeters
Inches
Ltr
Millimeters
Inches
Minimum
Maximum
Minimum
Maximum
Minimum
Maximum
Minimum
Maximum
A
53.72
53.85
2.115
2.120
B
44.83 Nominal
1.765 Nominal
C
2.36 Nominal
0.093 Nominal
D
9.52 Nominal
0.375 Nominal
E
47.62 Nominal
1.875 Nominal
F
54.10
66.80
2.130
2.630
G
3.96 Nominal
0.156 Nominal
H
49.20 Nominal
1.937 Nominal
J
14.73 Nominal
0.580 Nominal
L
103.12 Nominal
4.060 Nominal
K
Post, 3 each, 0.50 diameter, equally spaced
FIGURE 3. Excitation fixture.
7
For Parts Inquires call Parts Hangar, Inc (727) 493-0744
© Copyright 2015 Integrated Publishing, Inc.
A Service Disabled Veteran Owned Small Business