
MIL-PRF-1/1400D
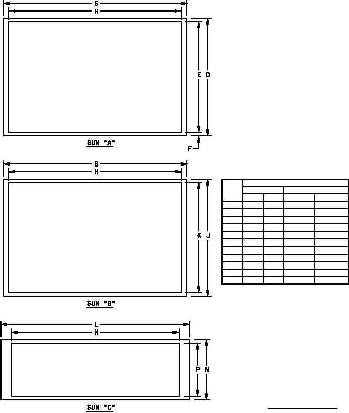
Dimensions
Ltr
Inches
Millimeters
Min
Max
Min
Max
D
4.36 4.46
110.7
113.3
E
4.16 4.26
105.7
108.2
F
---
.062
---
1.6
G
6.90 7.00
175.3
177.8
H
6.50 6.60
165.1
167.6
J
4.39 4.49
111.5
114.1
K
4.13 4.23
104.9
107.4
L
7.10 7.20
180.3
182.9
M
6.30 6.40
160.0
162.6
N
2.22 2.32
56.4
58.9
P
1.96 2.06
49.8
52.3
FIGURE 3. Pattern distortion diagram.
9
For Parts Inquires call Parts Hangar, Inc (727) 493-0744
© Copyright 2015 Integrated Publishing, Inc.
A Service Disabled Veteran Owned Small Business