
MIL-PRF-1/1232E
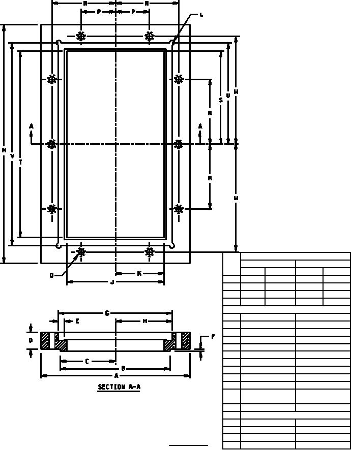
Dimensions
Ltr
Inches
Millimeters
Min
Max
Min
Max
N
2.309
2.317
58.65
58.85
P
1.246
1.254
31.65
31.85
R
2.371
2.379
60.22
60.43
W
3.934
3.942
99.92
100.13
Nominal
A
5.437
138.10
B
4.000
101.60
C
2.000
50.80
D
.600
15.24
E
.2188 TYP
5.56 TYP
F
.080
2.03
G
4.135
105.03
H
2.067
52.50
J
3.537
89.84
K
1.768
44.91
L
.2188 RAD x
5.56 RAD x
.270 DEEP TYP
6.86 DEEP TYP
M
8.6875
220.66
Q
5/16-18UNC-2B (10) holes
S
3.393
86.18
T
6.787
172.39
U
3.692
93.78
FIGURE 2. Mounting seat.
V
7.385
187.58
5
For Parts Inquires call Parts Hangar, Inc (727) 493-0744
© Copyright 2015 Integrated Publishing, Inc.
A Service Disabled Veteran Owned Small Business