
MIL-PRF-1/1232E
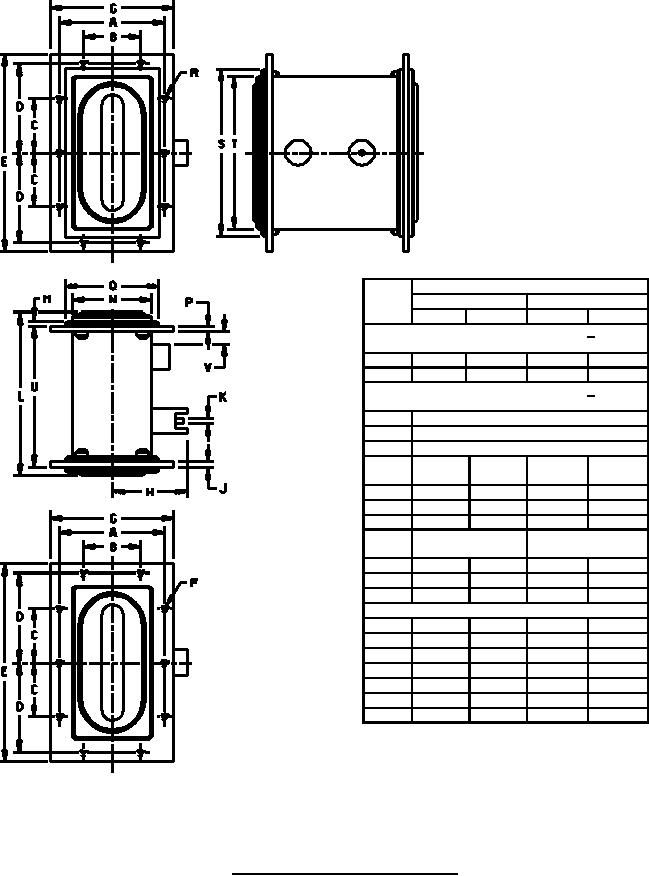
Dimensions
Ltr
Inches
Millimeters
Min
Max
Min
Max
Conformance inspection, part 1 2/
J
.240
.260
6.10
6.60
P
.240
.260
6.10
6.60
Conformance inspection, part 1 4/
E
See note
F
5/16-18UNC-2A (10) holes
G
See note
K
.245
.255
6.22
6.48
DIA
DIA
DIA
DIA
L
---
7.250
---
184.15
M
.240
.260
6.10
6.60
N
---
3.475
---
88.27
R
Dr. size S-.348
Dr. size S- 8.84
(10) holes
(10) holes
T
---
6.725
---
170.82
U
6.150
6.250
156.21
158.75
V
.562
---
14.27
---
Conformance inspection, part 2
A
4.618
4.634
117.30
117.70
B
2.492
2.508
63.30
63.70
C
2.367
2.383
60.12
60.53
D
3.930
3.946
99.82
100.23
H
---
3.3125
---
84.14
Q
4.105
4.125
104.27
104.78
S
7.355
7.375
186.82
187.33
NOTE: This dimension shall conform to the requirements of MIL-PRF-3922/52A-001.
FIGURE 1. Outline drawing of electron tube type 7166.
4
For Parts Inquires call Parts Hangar, Inc (727) 493-0744
© Copyright 2015 Integrated Publishing, Inc.
A Service Disabled Veteran Owned Small Business