
MIL-PRF-1/988H
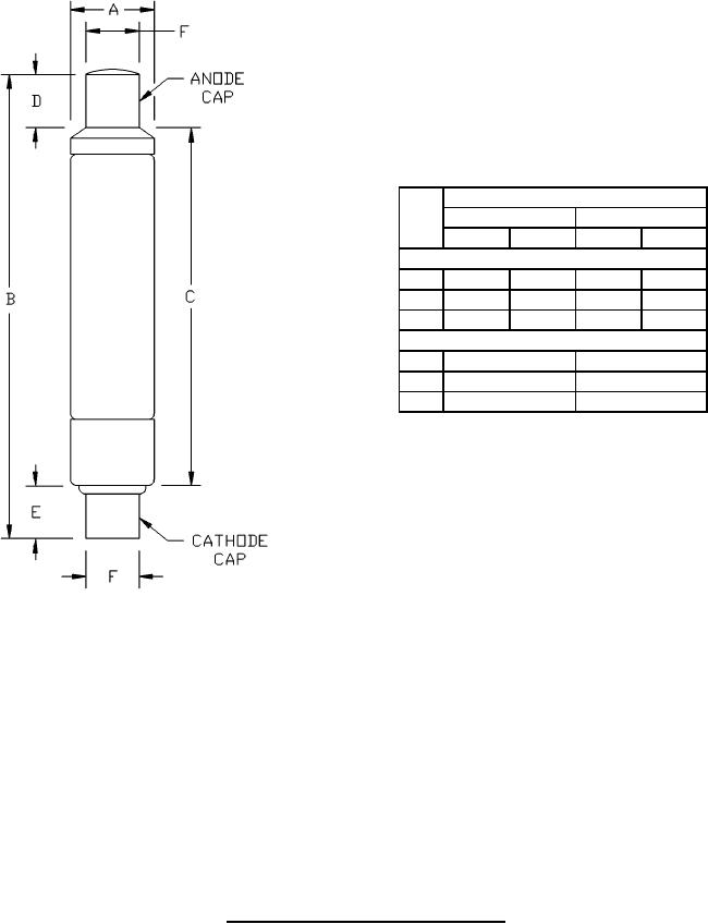
Dimensions
Ltr
Inches
Millimeters
Min
Max
Min
Max
Conformance inspection, part 2
A
---
.395
---
10.03
B
2.125
2.250
53.98
57.15
C
1.625
1.750
41.28
44.45
Reference dimensions
D
.250
6.35
E
.250
6.35
F
.250
6.35
NOTE: Mechanical configuration and materials used may vary, provided all specified dimensions are met.
FIGURE 1. Outline drawing of electron tube type 7615.
4
For Parts Inquires call Parts Hangar, Inc (727) 493-0744
© Copyright 2015 Integrated Publishing, Inc.
A Service Disabled Veteran Owned Small Business