
MIL-PRF-1/986J
Dimensions
NOTES:
Ltr
Inches
Millimeters
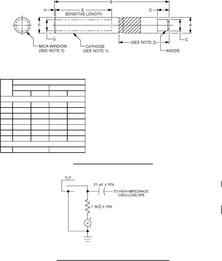
1. Cathode material: Allegheny Ludlum Sealmet 1 steel
Min
Max
Min
Max
for glass to metal seals, or equal.
Conformance inspection, part 1
2. Mechanical configuration and materials used may vary,
A
.328
.359
8.33
9.12
provided all other specified dimensions are met.
B
2.469
2.531
62.71
64.29
2
3. Mica window: 3 to 4 mg/cm .
C
.245
.255
6.22
6.48
E
---
1.250
---
31.75
F
.339
.349
8.61
8.86
G
.248
.252
6.30
6.40
H
---
.020
---
0.51
Reference dimension
D
.250
6.35
FIGURE 1. Outline drawing of electron tube types 7616.
FIGURE 2. Circuit for measuring starting voltage and 50 volt pulse height.
5
For Parts Inquires call Parts Hangar, Inc (727) 493-0744
© Copyright 2015 Integrated Publishing, Inc.
A Service Disabled Veteran Owned Small Business