
MIL-PRF-1/889J
Dimensions (nominal)
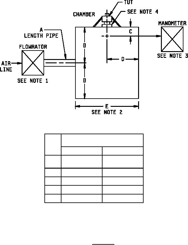
Ltr
Millimeters
Inches
.750 ID x 2.000
A
19.05 ID x 50.80
length pipe
length pipe
B
152.40
6.000
C
50.80
2.000
D
152.40
6.000
E
304.80
12.000
NOTES:
1. Fisher Porter flowrator model B4-27-10/77, or equivalent.
2. 12 inch (304.80 mm) cube inside dimensions, compound sealed.
3. F.W. Dwyer manometer, 0 to 1 inch (25.40 mm) of water (Fisher Scientific Company 11-295-5 draft gage), or equivalent.
4. Socket specified on drawing 246-JAN.
FIGURE 2. Baffle system.
8
For Parts Inquires call Parts Hangar, Inc (727) 493-0744
© Copyright 2015 Integrated Publishing, Inc.
A Service Disabled Veteran Owned Small Business