
MIL-PRF-1/806J
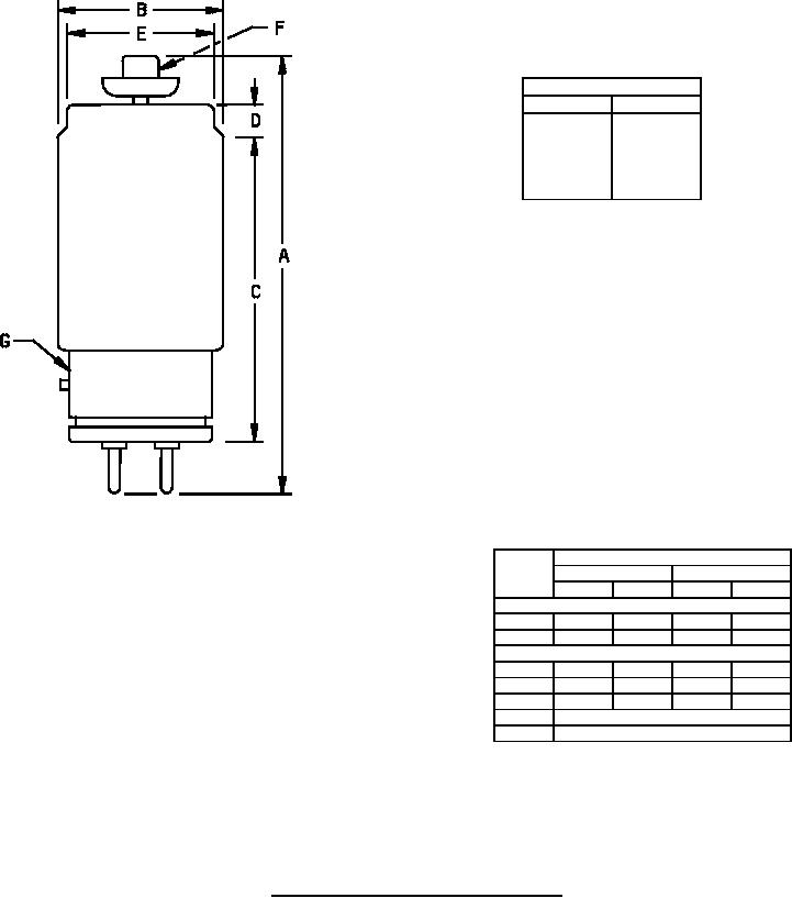
Pin connections
Pin No.
Element
1
g
2
h, k
3
h
4
k
cap
a
Dimensions
Ltr
Inches
Millimeters
Min
Max
Min
Max
Conformance inspection, part 2
A
6.250
6.875
158.75 174.63
B
2.380
2.562
60.45
65.07
Conformance inspection, part 3 (see note)
C
4.000
5.000
101.60 127.00
D
.400
---
10.16
---
E
2.000
2.300
50.80
58.42
F
Cap: C1-43 (EIA)
G
Base: A4-18 (EIA)
NOTE:
These dimensions shall be checked annually with the following accept on zero defect sampling plan:
n1 = 4
c1 = 0
n2 = 4
c2 = 0;
In case of failure, the failing dimensions(s) shall become conformance inspection, part 2, for three successful
consecutive submissions, at which time the test may revert to the conformance inspection, part 3 basis.
FIGURE 1. Outline drawing of electron tube type 4C35A.
4
For Parts Inquires call Parts Hangar, Inc (727) 493-0744
© Copyright 2015 Integrated Publishing, Inc.
A Service Disabled Veteran Owned Small Business