
MIL-PRF-1/770F
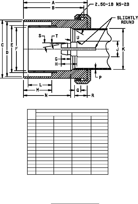
Dimensions
Ltr
Inches
Millimeters
Min
Max
Min
Max
A
2.526
2.536
64.16
64.41
B
2.397
2.407
60.88
61.14
C
2.308
2.312
58.62
58.72
D
2.183
2.187
55.45
55.55
E
1.873
1.877
47.57
47.67
F
1.718
1.722
43.64
43.74
G
.370
.380
9.40
9.65
H
.620
.630
15.75
16.00
J
.620 DIA
.630 DIA
15.75 DIA
16.00 DIA
K
1.620 DIA
1.630 DIA
41.15 DIA4
41.40 DIA
L
.934
.940
23.72
23.88
M
1.122
1.128
28.50
28.65
N
1.870
1.880
47.50
47.75
P
.044
.054
1.12
1.37
Q
.245
.255
6.22
6.48
R
.495
.505
12.57
12.83
FIGURE 4. Test coupling (not furnished with tube).
11
For Parts Inquires call Parts Hangar, Inc (727) 493-0744
© Copyright 2015 Integrated Publishing, Inc.
A Service Disabled Veteran Owned Small Business