
MIL-PRF-1/299G
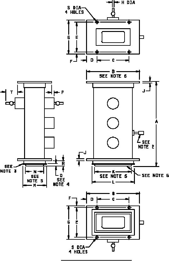
FIGURE 1. Outline drawing of electron tube type 5927.
See notes at end of Figure I.
4
For Parts Inquires call Parts Hangar, Inc (727) 493-0744
© Copyright 2015 Integrated Publishing, Inc.
A Service Disabled Veteran Owned Small Business