
INCH-POUND
MIL-PRF-1/1633B
1 October 2003
SUPERSEDING
MIL-PRF-1/1633A
10 July 1998
PERFORMANCE SPECIFICATION SHEET
ELECTRON TUBE, NEGATIVE GRID (MICROW AVE)
TYPE 7211
This specification is approved for use by all Depart-
ments and Agencies of the Department of Defense.
The requirements for acquiring the electron tube described herein
shall consist of this document and the latest issue of MIL-PRF-1.
DESCRIPTION: Triode, planar, ceramic and metal.
See figure 1.
Mounting position: Any.
W eight: 2.5 ounces nominal.
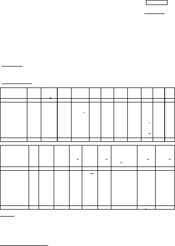
ABSOLUTE RATINGS:
Parameter:
F1
Ef
Eb
eb
epy
Ec
Ik
Ib
ib
Ic
ic
Unit:
MHz
V 1/
V dc
v
kv
V dc
mA dc
mA dc
a
mA dc
a
Maximum:
---
1,000
---
---
190
2,500
-150
---
---
CW osc or amp:
45
6.3 ±5%
1,200 2/
---
---
---
190
2,500
-150
---
---
Anode mod
45
6.3 ±5%
CW osc or amp:
---
5.0 3/
---
---
3,000
-150
3.5
Anode pulsed
---
2.5
---
6.3 ±5%
osc or amp:
2,500
---
---
3,000
-150
Grid pulsed
---
---
2.5
---
5.0 3/
6.3 ±5%
osc or amp:
Test condition:
---
6.3
1,000
---
---
Adj
---
100
---
---
---
Barometric
T
Pg
Pp
Du
TE
tp
tk
pressure,
Cooling
(anode
Parameter:
reduced
shank)
W 4/
W
---
sec
mmHg 6/
Unit:
--- 8/
°C 5/
µs
°C
(min)
(see 5/ and note
5 of figure 1)
Maximum:
60 25/
2.0
100
35
---
---
---
250
250
CW osc or amp:
2.0
100
35
---
---
---
250
250
Anode mod
60
CW osc or amp:
2.0
100
---
0.0033
---
6.0
250
250
Anode pulsed
60
osc or amp:
2.0
100
35
0.0033
---
6.0
250
250
Grid pulsed
60
osc or amp:
Test condition:
---
---
---
---
300
---
---
9/
---
GENERAL:
Qualification - Required.
Holding period (MIL-STD-1311) t = 72 hours.
AMSC N/A
1 of 9
FSC 5960
DISTRIBUTION STATEMENT A. Approved for public release; distribution is unlimited.
For Parts Inquires call Parts Hangar, Inc (727) 493-0744
© Copyright 2015 Integrated Publishing, Inc.
A Service Disabled Veteran Owned Small Business