
MIL-PRF-1/1331F
NOTES:
Dimensions
1. Dimensions are in inches.
Ltr
Inches
Millimeters
2. Metric equivalents are based upon 1.00 inch = 25.4 mm.
Min
Max
Min
Max
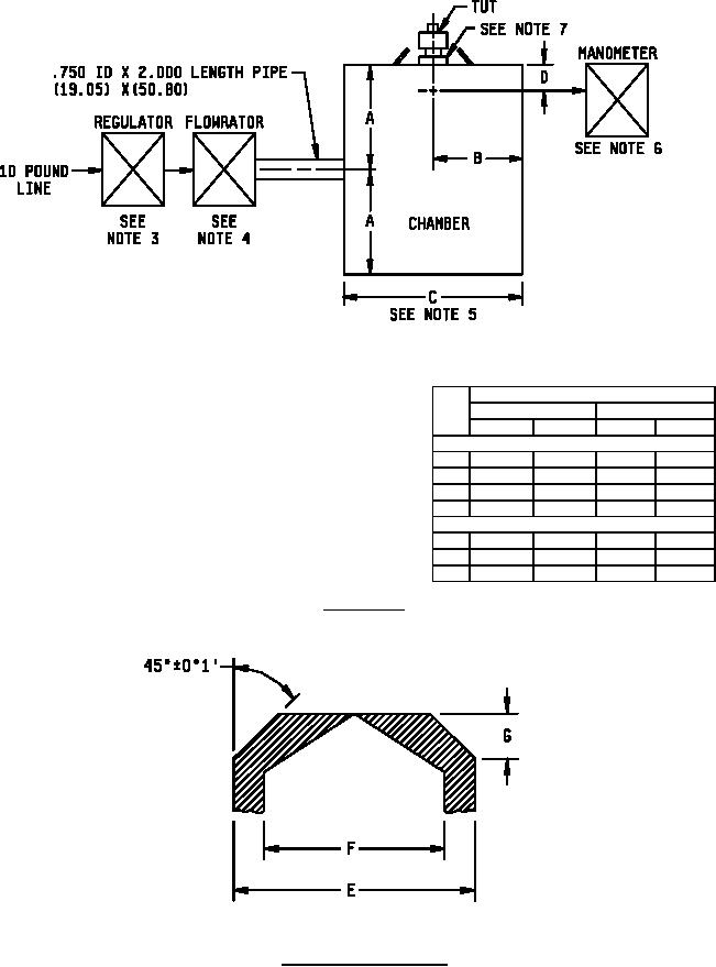
3. Fisher-Governer, Pressure Regulator Model 67, or equal.
Figure 2
4. Fisher-Porter Flowrater Model B4-27-10/77, or equal.
A
5.995
6.005
152.27
152.53
5. 12 inch (304.80 mm) cube inside dimensions, compound sealed, or
B
5.995
6.005
152.27
152.53
equal.
C
11.995
12.005
304.67
304.93
6. F. W . Dwyer Manometer, 0 to 1 inch (25.4 mm) of water (Fisher
D
1.995
2.005
50.67
50.93
Scientific Company 11-295-5 Draft Gage), or equal.
Figure 3
7. Socket specified on Drawing 246-JAN.
E
.9995
1.0005
25.387
25.413
F
.6995
.7005
17.767
17.793
G
.1895
.1905
4.813
4.839
FIGURE 2. Block diagram.
FIGURE 3. Contour limits of dome shape.
7
For Parts Inquires call Parts Hangar, Inc (727) 493-0744
© Copyright 2015 Integrated Publishing, Inc.
A Service Disabled Veteran Owned Small Business