
MIL-PRF-1/1254E
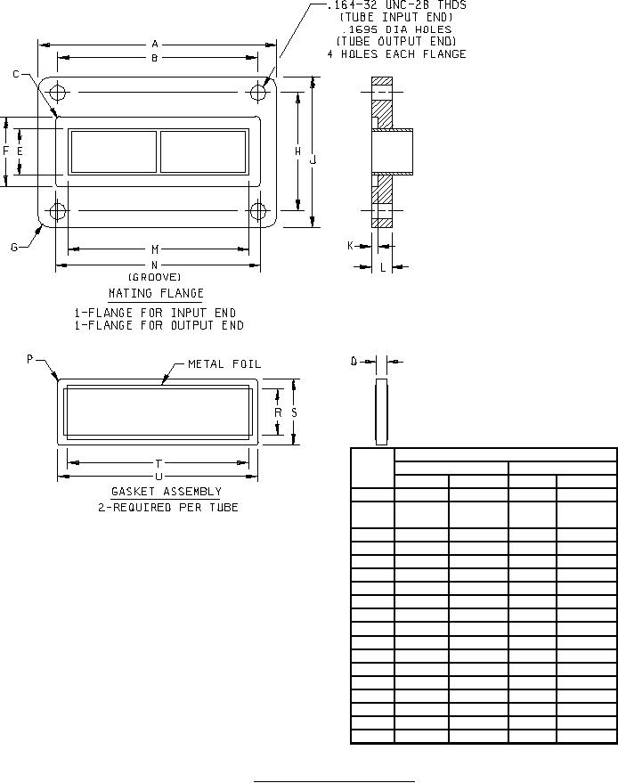
Dimensions
Ltr
Inches
Millimeters
Min
Max
Min
Max
A
2.560
2.590
65.02
65.79
B
2.164
2.176
54.96
55.27
holes
holes
holes
holes
C
---
.047 R
---
1.19 R
E
.497
.503
12.62
12.78
F
.753
.758
19.13
19.25
G
---
.120 R
---
3.05 R
H
1.276
1.284
32.41
32.61
J
1.610
1.640
40.89
41.66
K
.069
.071
1.75
1.80
L
.210
.230
5.33
5.84
M
1.946
1.954
49.43
49.63
N
2.203
2.208
55.96
56.08
P
---
.047 R
---
1.19 R
Q
---
.110 TYP
---
2.79 TYP
R
.508
---
12.90
---
S
---
.709
---
18.01
T
1.959
---
49.76
---
U
---
2.162
---
54.91
FIGURE 2. Mating flange and gasket assembly.
6
For Parts Inquires call Parts Hangar, Inc (727) 493-0744
© Copyright 2015 Integrated Publishing, Inc.
A Service Disabled Veteran Owned Small Business