
MIL-PRF-1/1105A
Dimensions
Dimensions
Ltr
Inches
Millimeters
Ltr
Inches
Millimeters
Min
Max
Min
Max
Min
Max
Min
Max
A
.718
.726
18.24
18.44
M
.067
.071
1.70
1.80
B
---
3.210
---
81.53
N
---
.250
---
6.35
C
2.884
2.900
73.25
73.66
P
---
.110 TYP
---
2.79 TYP
D
1.440
1.456
36.58
36.98
Q
---
.831
---
21.11
E
2.439
2.442
61.95
62.03
R
.630
---
16.00
---
F
2.680
2.688
68.07
68.28
S
2.444
---
62.08
---
G
.627
.630
15.93
16.00
T
---
2.647
---
67.23
H
.868
.876
22.05
22.25
U
.044 R
.048 R
1.12 R
1.22 R
J
1.076
1.084
27.33
27.53
V
.044 R
.048 R
1.12 R
1.22 R
.120 X 45° chamfer or 1.125 R
3.00 x 45° chamfer or 28.6 R
K
---
1.380
---
35.05
W
L
---
.005 R
---
0.13 R
X
.173 drilled (10) holes
4.39 drilled (10) holes
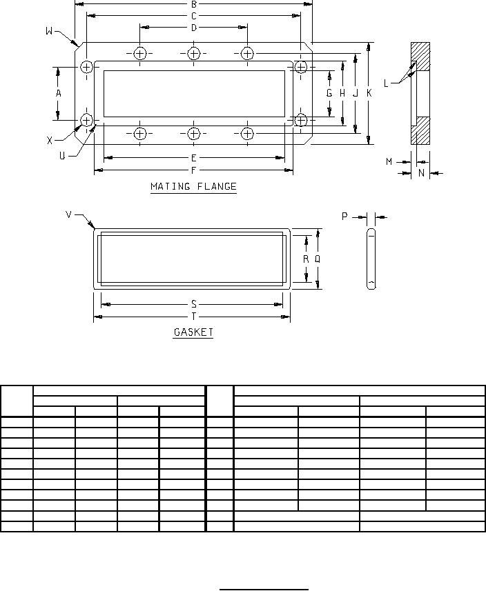
FIGURE 1. Mating flange and gasket.
4