
MIL-PRF-1/1100G
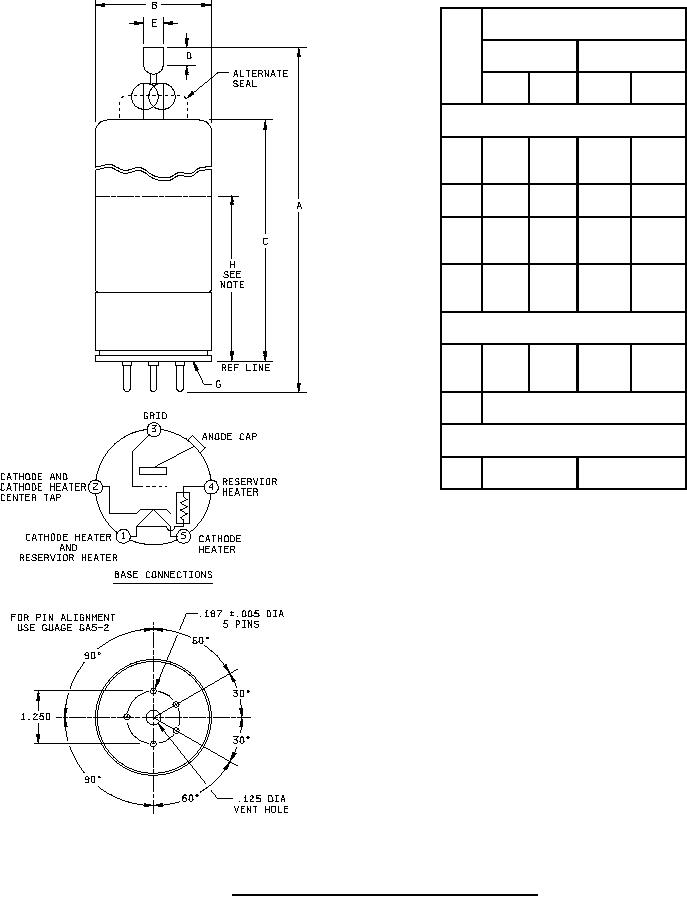
Dimensions
Ltr
Inches
Millimeters
Min
Max
Min
Max
Conformance inspection, part 2
12.50 292.10 317.50
A
11.50
0
0
B
-------- 3.313
--------
84.15
C
8.000
9.000 203.20
228.60
H
-------- 5.000
--------
127.00
Conformance inspection, part 3
0.573
14.20
14.55
E
0.559
G
Base: A5-98 (EIA)
Reference dimensions
D
0.500
12.70
NOTES: Dimension H locates the center line of the clamping area. Clamping shall be confined to 1.5 inches above
and below this line.
FIGURE 1. Outline drawing of electron tube type 5949A (glass).
4
For Parts Inquires call Parts Hangar, Inc (727) 493-0744
© Copyright 2015 Integrated Publishing, Inc.
A Service Disabled Veteran Owned Small Business