
MIL-PRF-1/1071D
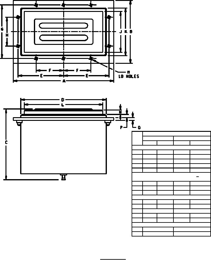
Dimensions
Ltr
Inches
Millimeters
Min
Max
Min
Max
Preproduction inspection
C
---
6.125
---
155.58
D
7.355
7.375
186.82
187.33
F
2.367
2.383
60.12
60.53
K
4.105
4.125
104.27
104.78
Q
.240
.260
6.10
6.60
Conformance inspection, part 1 4/
E
3.930
3.946
99.82
100.23
J
---
3.475
---
88.27
L
----
6.725
---
170.82
Conformance inspection, part 2
G
4.618
4.634
117.30
117.70
H
2.492
2.508
63.30
63.70
M
.348 Drill
8.84 Drill
N
.370
.390
9.40
9.91
P
.240
.260
6.10
6.60
Reference dimensions
A
8.69
220.73
B
5.44
138.18
FIGURE 2. Outline drawing.
5
For Parts Inquires call Parts Hangar, Inc (727) 493-0744
© Copyright 2015 Integrated Publishing, Inc.
A Service Disabled Veteran Owned Small Business