
MIL-PRF-1/1071D
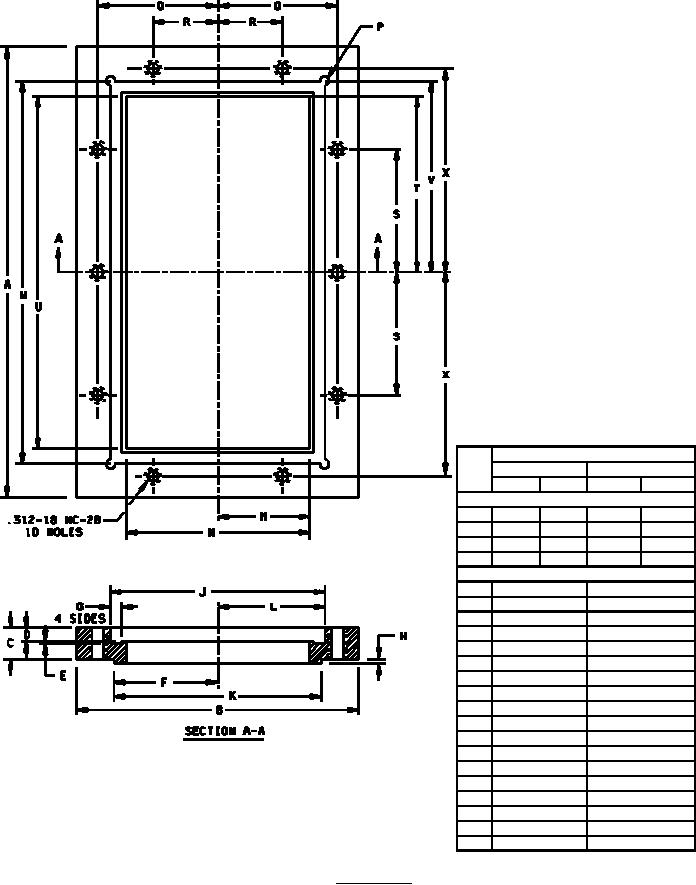
Dimensions
Ltr
Inches
Millimeters
Min
Max
Min
Max
Conformance inspection, part 1
Q
2.309 2.317
58.65
58.85
R
1.246 1.254
31.65
31.85
S
2.371 2.379
60.22
60.43
X
3.934 3.942
99.92
100.13
Reference dimensions
A
8.690
220.73
B
5.437
138.10
C
.600
15.24
D
.250
6.35
E
.020
0.51
F
2.000
50.80
G
.220
5.59
H
.080
2.03
J
4.135
105.03
K
4.000
101.60
L
2.067
52.50
M
1.768
44.91
N
3.537
89.84
P
.22 x .270 DP
5.59 x 6.86 DP
T
3.393
86.18
U
6.787
172.39
V
3.692
93.78
W
7.385
187.58
FIGURE 1. Mounting seat.
4
For Parts Inquires call Parts Hangar, Inc (727) 493-0744
© Copyright 2015 Integrated Publishing, Inc.
A Service Disabled Veteran Owned Small Business