
MIL-PRF-1/1000B
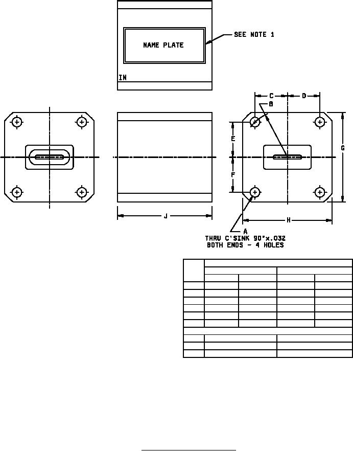
Dimensions
Ltr
Inches
Millimeters
Min
Max
Min
Max
C
.674
.678
17.12
17.22
D
.674
.678
17.12
17.22
E
.735
.739
18.67
18.77
F
.735
.739
18.67
18.77
G
1.870
1.970
47.50
50.04
J
1.973
1.993
50.11
50.62
Reference
A
.201 DIA
5.11 DIA
B
1.000 R
25.4 R
H
1.875
47.62
NOTES:
1. The nameplate shall give the following information:
(a)
The organization that tuned and tested the tube.
(b)
The model and serial number of the tube.
(c)
The date the tube was completed and sealed.
2. The electrical performance of the tube shall conform to tube requirements specified in 2.6, 2.6.1, 2.6.2, and 2.6.3.
FIGURE 2. Comparison - standard dummy tube.
7
For Parts Inquires call Parts Hangar, Inc (727) 493-0744
© Copyright 2015 Integrated Publishing, Inc.
A Service Disabled Veteran Owned Small Business